THE ADVANTAGES OF BESPOKE WORKSHOP FURNITURE

magazine-mgm 5.jpg

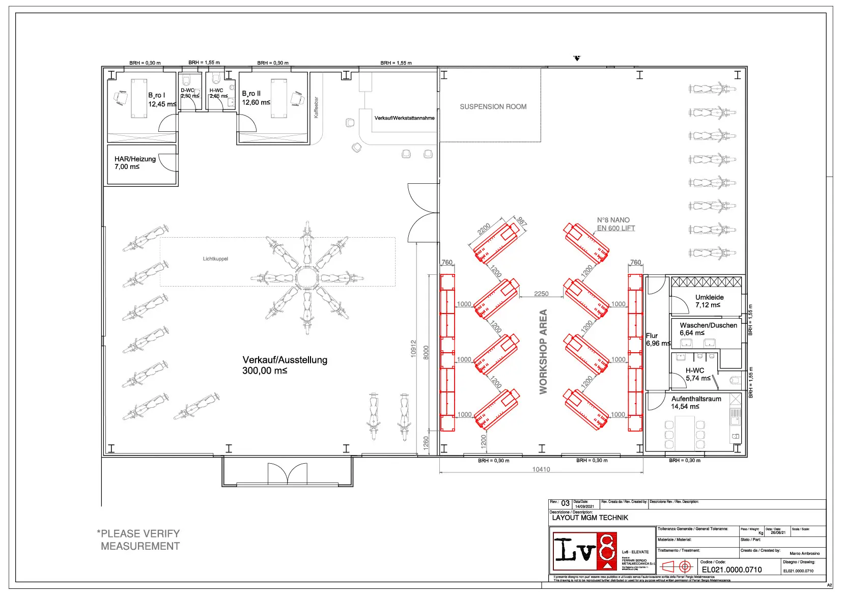
DO YOU HAVE TO DESIGN, FURNISH AND SET UP YOUR WORKSHOP?

Whether you have a car or motorcycle workshop, dealership, body shop, or an industry flexibility and efficiency are words on the agenda.

Setting up a workshop is not easy and we at QUBE are well aware of this, but we are here in order to offer the highest QUALITY solutions and always guarantee the maximum COMFORT to our customers.

Designing a bespoke vehicle workshop has a huge impact on your business’s productivity, speed and profitability, which is precisely why our focus is on rationalising and optimising the space in your working environment.

Here some of the benefits of a composable modular furniture:

  • OPTIMISE YOUR WORKSPACE

The composable modular furniture allows you to optimize both little spaces and larger rooms that need to be divided into operational areas.

We supply workbenches designed and produced by LV8 with 100% Made in Italy components:

Trolleys, workbenches, tool storage cabinets are the best choice to rationalise your space, improve the productivity of your operators and provide faster responses to a market that is running ever faster.

A wide range of modules, worktops and complements that, repeated and freely combined, allow to obtain furniture solutions suitable to setting up all the types of spaces.

 

  • PERSONALISE YOUR COMPOSABLE MODULAR FURNITURE AND INCREASE YOUR PROFITABILITY

Choose a modular and composable technical furniture for functional workshop, but at the same time guarantees the maximum personalisation and quality, to work in a UNIQUE environment.

Countless graphic, chromatic and laser cut customizations are possible in our range of workshop furniture.

You can create a modern and functional workshop that increases the productivity of your team and consequently your profitability.

 

  • CUT INVESTMENT COSTS

The composable modular workshop furniture will also allow you to cut the costs of your investments. The workbenches designed and produced by LV8 are designed to be combined and implemented over time in order to offer solutions always suitable to your needs and workspace.

The modularity of our workshop furniture allows you to implement your furnishing in various steps, spreading your investment over time.

  • YOU CAN MOVE OR EXPAND YOUR FURNITURE SAVING TIME AND MONEY

May in the future you will need to move to a new location or building, the cost of managing the move with traditional furniture could be a concern and greatly affect your decision to move or expand your activity.

Our bespoke workshop furniture is easily decomposable and extremely flexible, it is easy to transport and to readapt allowing maximum optimisation of the truck loads on the trucks required for transport.

These are only some of the advantages whose you can benefit of by choosing a bespoke workshop furniture system, with the possibility of saving on investments, lower the costs and reorganize with maximum flexibility production and warehouses inside your industry, car or motorcycle workshop, dealership, body shop.

CHOOSE QUBE!

QUBE offers a wide range of 100% Made in Italy products, including workshop furnishing, vehicle and motorcycle lifts, garage and workshop equipment, tools and plant design.

WE DESIGN YOUR WORKSHOP: UNIQUE TAYLOR-MADE SOLUTIONS

Our experts analyse the customers’ requests, designing spaces with bespoke workshop furniture which are in line with the customer’s budget and required aesthetical and qualitative standards.

What are you waiting for? Contact us right now to receive a free consultation from our experts that will take care of giving you every requested detail and answer all your doubts!

Gallery
Categories
CONTACT US FOR A FREE CONSULTATION

Files must be uploaded in this type (png, jpg, jpeg, doc, docx, pdf) and weight not more than 4 MB
You may also be interested in…

Do you need to renovate, modernise or build your new workshop with workbenches, motorbike and car lifts, wheel balancers, tyre changers , tools, exhaust gas extraction and fluid distribution systems? 

Book your free consultation with our experts!

CONTACT US FOR A FREE CONSULTATION